Projetos de circuito eletrônicoAmplificadoresFaça esta caixa de alto-falante Bass Booster

Faça esta caixa de alto-falante Bass Booster

O artigo explica a construção do sistema de caixa de alto-falante de reforço de graves, que pode ser usado para reproduzir música com efeito de graves pesados, que pode ser ajustado com um potenciômetro.

Por: Alfy Mackenzie

A maioria dos sistemas hi-fi acessíveis no mercado tem um feedback de médio e agudos decente, mas não funciona bem quando encontra alguns graves profundos. Isso se deve principalmente à capacidade do alto-falante e à saída do amplificador que são insuficientes para conduzir os graves.

Aqui está uma solução que irá gerar o baixo reverberante em níveis tremendos.

Quando comparado com outras frequências de áudio altas, os graves não são direcionais e, portanto, não exigem posições específicas dos alto-falantes.

O sistema de alto-falantes de reforço de graves neste post descreve como construir esse circuito sem afetar a saída estéreo ou a qualidade do som.

O conceito

O conceito é simples; o booster mescla os sinais graves dos canais estéreo esquerdo e direito e os amplifica.

Em seguida, reproduz o som através de um alto-falante de graves padrão. Por isso, existem muitas maneiras de utilizar este sistema.

O projeto mais simples terá o filtro passa-baixo, conforme mostrado abaixo na Figura 1, conectado a um amplificador mono ou estéreo extra de 40W ou mais. Este amplificador é então tocado usando um gabinete de alto-falante com uma resposta de graves decente.

Outra alternativa é quando a configuração de passagem baixa acima é implementada com o sistema de alto-falantes autônomo que é propositadamente projetado para reprodução de graves, conforme discutido neste artigo.

Como um amplificador sobressalente pode ser complicado, foi projetado um amplificador embutido simples como o usado neste projeto.

Construção

Em sua forma mais modesta, o booster é usado com um amplificador separado. Nesse caso, o filtro deve ser feito em um pedacinho de placa perfurada ou tiras de etiquetas.

A unidade inteira deve ser montada dentro da nova caixa do alto-falante de graves (como feito com nossa unidade protótipo) ou em qualquer outro local disponível.

Esta unidade de peça única pode ser feita facilmente, pois a maioria dos componentes é fixada diretamente na placa de circuito impresso, como mostrado na Figura 4.

O transformador de potência principal, transistores de saída e potenciômetro de regulação são instalados externamente.

Em seguida, as conexões são estabelecidas de e para os componentes com base nos números no plano de layout da PCB e no esquema.

Deve-se garantir que todos os componentes eletrônicos sejam colocados de acordo com sua polaridade correta antes de soldar.

Os transistores Q6 e Q7 são fixados no dissipador de calor com arruelas isolantes e conectados aos pinos 1, 2, 3, 4 e 5. Os pontos de conexão estão representados nas Figuras 2 e 5.

O transformador de potência deve ser fixado em borracha se o amplificador for colocado dentro do gabinete do alto-falante.

Aconselha-se a utilização de um cabo blindado para efetuar a ligação às entradas e ao controlo de volume.

Como testar

Quando tiver certeza de que todos os componentes eletrônicos estão em seus lugares corretos, coloque o limpador RV2 no meio de seu deslocamento. Certifique-se de não conectar os alto-falantes neste momento.

Depois disso, ligue a alimentação principal de 240 V e meça a tensão nos terminais do alto-falante. O valor deve ficar abaixo de 0,2 V e se for mais, desligue a alimentação e examine minuciosamente todas as conexões.

Se você não tiver um multímetro, conecte um fio de alto-falante a um lado da saída do amplificador e toque brevemente o segundo fio no outro ponto de saída.

Em boas conexões, o alto-falante não produzirá nenhum som ou apenas um som fraco de “clique”. Se o cone do alto-falante saltar imediatamente, desligue a alimentação e examine as conexões novamente.

Se o alto-falante estiver silencioso e tudo parecer bem, use um miliamperímetro (se tiver) para medir a corrente em série com um dos fios do alto-falante.

Afine o potenciômetro RV2 até que a leitura do amperímetro mostre 40 mA. Se não houver miliamperímetro, deixe o RV2 na posição do meio.

Em seguida, conecte o cabo dos alto-falantes atuais à entrada do filtro e conecte o alto-falante de graves ao amplificador de reforço.

Você pode ligar a fonte e inspecionar todo o sistema. Lembre-se de que o som do circuito de reforço de graves pode ficar um pouco distorcido se for utilizado de uma fonte de áudio independente.

No entanto, se você conectar as entradas do circuito com o terminal de um alto-falante esquerdo/direito existente de um sistema estéreo pronto, ele poderá produzir um som incrivelmente bom e com um nível de graves enorme.

Descrição do circuito

O esquema completo do circuito do sistema de caixa de alto-falante de reforço de graves pode ser visto no diagrama a seguir

Os resistores R1 a R4 combinam a saída de cada canal do amplificador estéreo atual.

Em seguida, os resistores R5, R6 e RV1, além dos capacitores C1, C2 e C3, criam um filtro passa-baixas com frequência de corte de cerca de 200Hz. Além disso, também tem 18 dB por oitava de inclinação.

Para proteger os alto-falantes de picos e transientes de ativação, o capacitor C4 funciona como um filtro passa-alta com aproximadamente 30 Hz.

A Figura 1 mostra que o filtro que se destina a ser utilizado com diferentes amplificadores possui um atenuador de 20 dB acoplado antes do potenciômetro de saída. Isso protege o amplificador subsequente contra sobrecarga.

O amplificador da Figura 2 tem um ganho de tensão de 23

Faça esta caixa de alto-falante Bass BoosterFaça esta caixa de alto-falante Bass Booster .

Além disso, também produz cerca de 25 W em 4 ohms e uma resposta de frequência na faixa de 0 Hz a cerca de 50 kHz.

Mas, quando o filtro de entrada é adicionado, a resposta em frequência do amplificador torna-se a mesma do filtro. A Figura 3 mostra a curva da resposta do filtro.

Descrição do circuito
Descrição do circuito

O ganho de tensão principal do circuito amplificador é fornecido por IC1, Q2 e Q3.

Os transistores Q4 e Q5 fornecem o ganho de corrente necessário para acionar os transistores de saída Q6 e Q7.

Enquanto Q1 estabiliza Q2 e Q3, D1 equilibra o transistor Q4. Então, os diodos D3 e D4 compensam os transistores Q5 e Q7.

Por meio da restrição da oscilação da tensão de saída do CI, os diodos Zener ZD1 e ZD2 protegem os transistores Q2 e Q3.

Existe a possibilidade de usar o amplificador discutido nesta tarefa sem incorporar o filtro.

Isso significa que o componente eletrônico atuará como um amplificador mono direto de 40 W. Se for esse o caso, um dos diodos, D2 ou D3 ou ambos devem ser realocados no dissipador de calor.

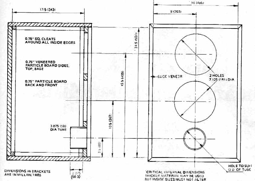
Gabinete de alto-falante de reforço de graves

O caso que foi avaliado para uso com este sistema de alto-falantes é mostrado nas Figuras 6 e 7 abaixo.

Os alto-falantes selecionados para o circuito de reforço de graves foram 2nos 8-ohm Magnavox tipo 20 W que é conectado em paralelo. Portanto, os alto-falantes terão apenas uma impedância de 4 ohms.

O interior do gabinete do alto-falante foi coberto com material absorvente como espuma, nas laterais, nas superfícies superior e traseira.

Diagrama de conexão do fio do alto-falante

Lista de peças

Resistores:

Capacitores:

Semicondutores e Diversos

Hashtags: #Faça #esta #caixa #altofalante #Bass #Booster
 

FONTE


Nota: Este conteúdo foi traduzido do Inglês para português (auto)
Pode conter erros de tradução

Olá, se tiver algum erro de tradução (AUTO), falta de link para download etc…
Veja na FONTE até ser revisado o conteúdo.
Status (Ok Até agora)


Se tiver algum erro coloque nos comentários

Mas se gostou compartilhe!!!

Relacionados